Projektplanung
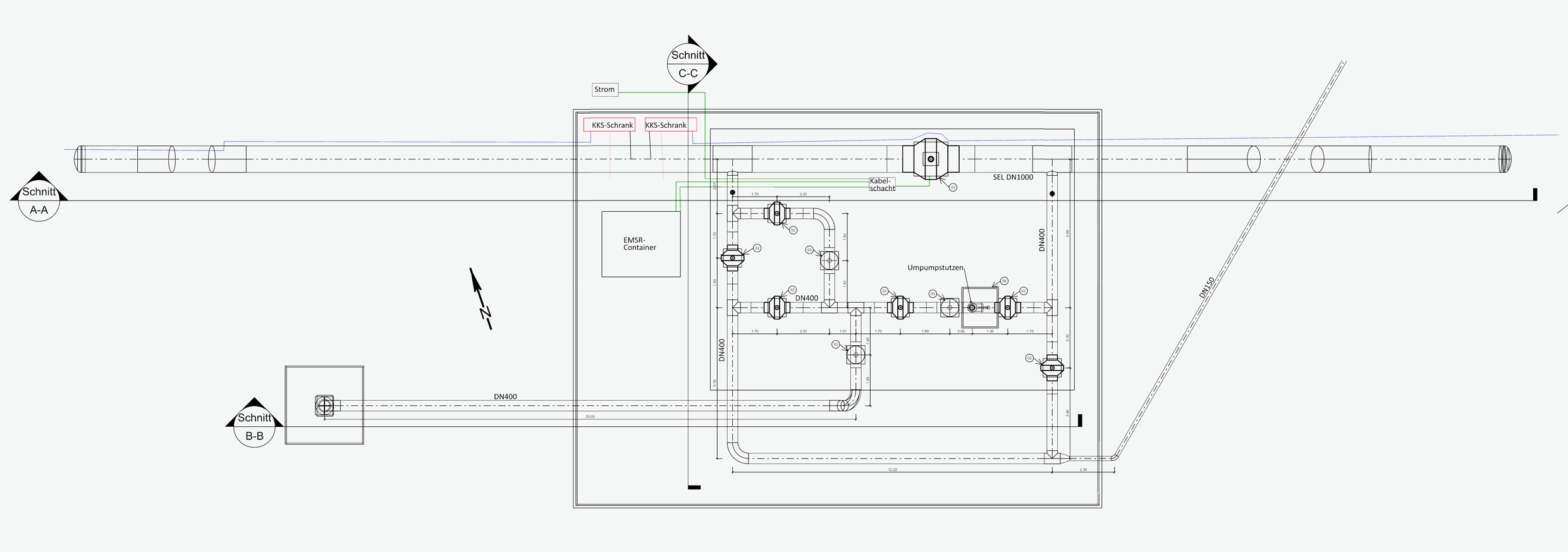
Planung von Armaturengruppen für eine DN1000 Pipeline DP100 unter Berücksichtigung der Wasserstofffähigkeit

Übersichtspläne: Modellierung unter Beachtung der örtlichen Gegebenheiten.

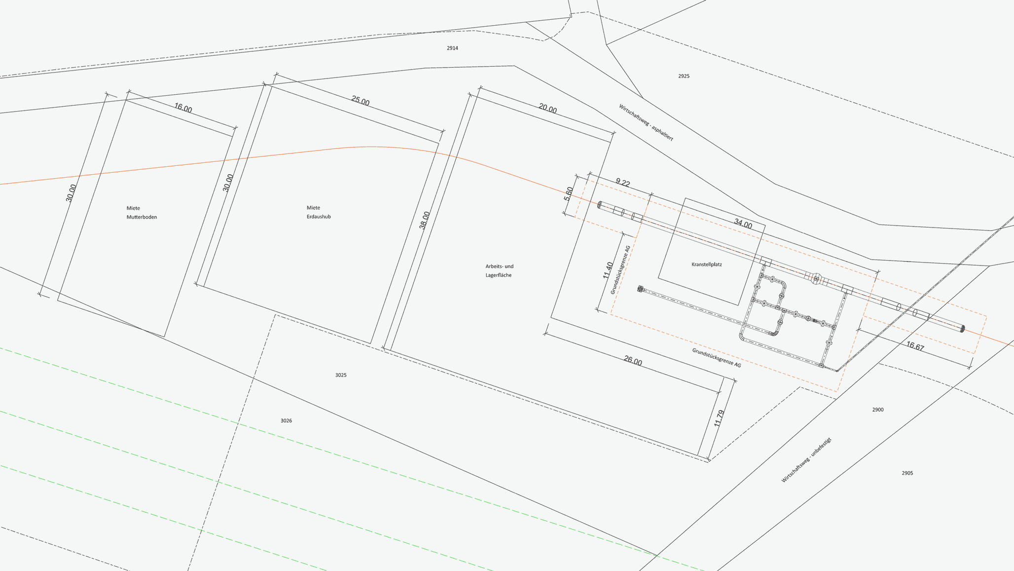
Baustelleneinrichtungspläne: Planung der notwendigen Arbeits- und Lagerflächen für die Ausführungsphase.

Ausführungsplanung: Detailplanung unter Berücksichtigung der Kundenspezifikation und den standortspezifischen Gegebenheiten.
Lassen Sie uns darüber sprechen.
IBAU Plant Engineering
Glauburgstraße 23
60318 Frankfurt a. Main
+49 (0) 172 7956091
info@ibau-pe.de
© 2024